貸室情報RENTAL ROOM
マシタ不動産が取り扱う物件に関しては
仲介手数料はかかりません
管理番号83202
FPマンション
磯貝マンションB 202号室
-
外観
-
間取り
-
- 家賃
- 48,000円
-
- 権利金
- 48,000円
-
- 敷金
- なし
-
- 礼金
- なし
-
- 管理・共益費
- なし
-
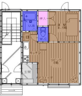
- 間取り
- LK8×4.5
-
- 面積
-
- 階数
- 2階
-
- 築年月
- 平成13年8月
-
- 所在地
- 北海道日高郡新ひだか町静内緑町1丁目1-6
チェックポイント
物件詳細情報
| 物件種目 | 木造2階建 | 物件名 | 磯貝マンションB 202号室 |
|---|---|---|---|
| 賃料 | 48,000円 | 敷金・礼金 | なし・なし |
| 管理費等 | なし | 間取り | LK8×4.5 |
| 所在地 | 北海道日高郡新ひだか町静内緑町1丁目1-6 | 階数 | 2階 |
| 専有面積 (使用部分面積) |
間取り内訳 | リビングキッチン8帖・洋室4.5帖・フロトイレ別 | |
| 構造・規模 | 木造 | 築年月 | 平成13年8月 |
| 契約期間 | 駐車場 | 有 1台分 | |
| 現況 | 入居日 | 4月始頃 | |
| 保険等 | 要 火災保険(加入条件:2年) | クリーニング費 | 33,000円 |
| 備考 | ※照明器具無し(居間・各室) ※BSアンテナ付き |
||
設備・特徴
- ウォシュレット
周辺施設
上記の他、記載していない物件の
問い合わせについては 担当者:本間まで
0146-42-1636
問い合わせ時間 /
月曜~土曜日
AM8:30~PM17:30(会社にて対応)
お急ぎの方は /
月曜~土曜日AM8:30前、
PM17:30以降、日曜日(自宅にて対応)





