WebモデルハウスWEB MODEL HOUSE
モデルハウスをご紹介します。
中野町(省エネ)中古再生モデル「展示公開終了」
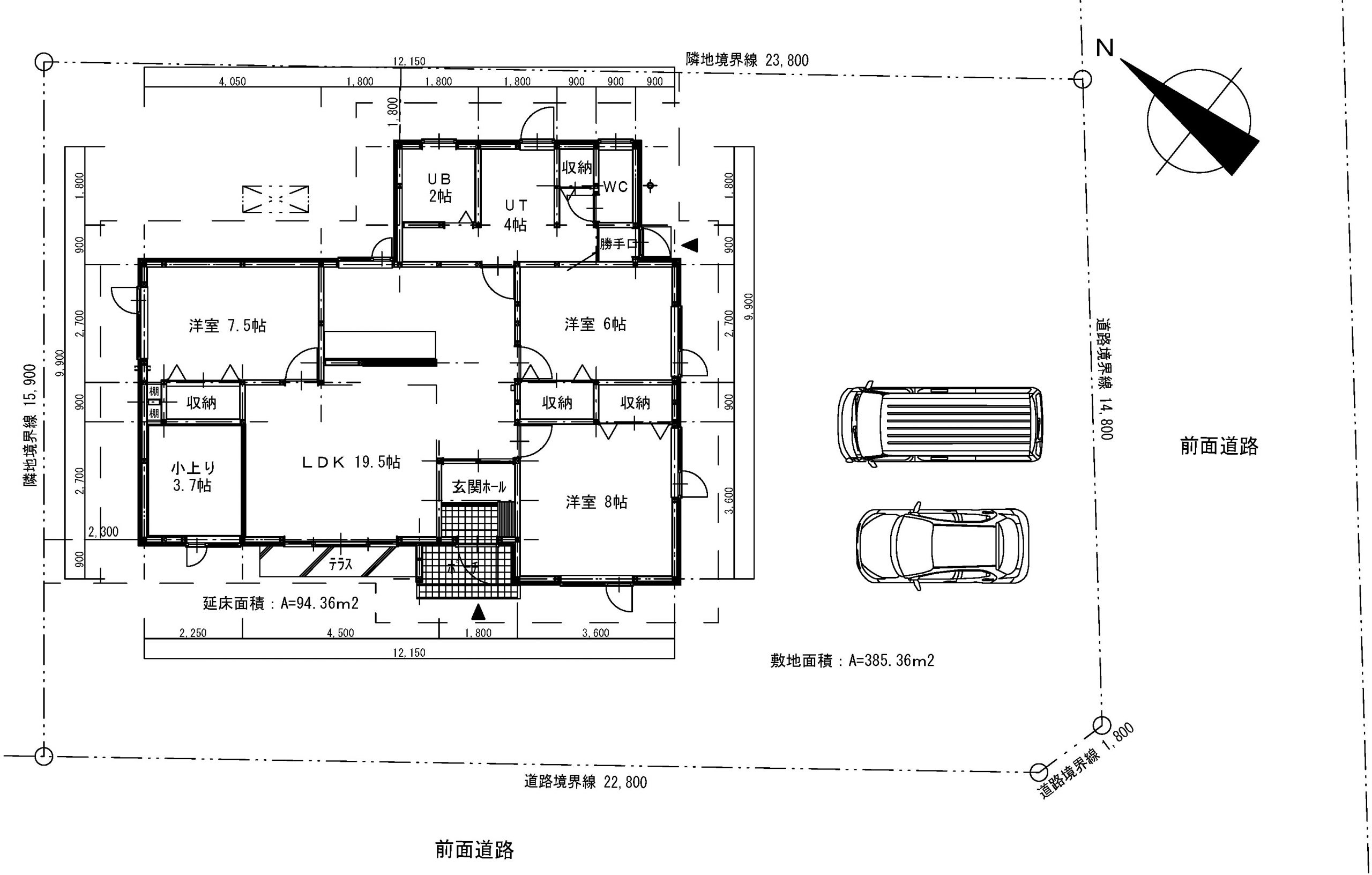
モデルハウス概要
- 建物種別
- 木造平屋建て「省エネ住宅」
- 間取り
- 3LDK+小上り
- 築年数
- 51年「2025年11月フルリノベーション(スケルトン改修)」
- 工法
- 木軸在来工法
- 断熱
- 付加断熱仕様:省エネ4等級
玄関断熱ドア(Ⅰ地域)・断熱樹脂サッシ(低放射性ガラス)
- 設備
- FF石油給湯機・IHクッキングヒーター・冷暖エアコン(LDK・洋室・UT)・灯油配管
システムキッチンL2550・カップボードW1800・UB1616・シャンプードレッサーW750・洗濯パン・シャワートイレ・個別換気
カメラ付ドアホン・全室照明器具(玄関ポーチ人感センサー・外灯)・屋外防水コンセント・屋外散水栓
- 屋内スペース
- LDK(対面キッチン)・洋室3室・小上り
- 備考
- 付加断熱により、断熱性と気密性能を向上させた住宅です。
内見希望の方は、事前に予約(0146-42-1636)をお願いします。
※建売・リフォーム物件は、新ひだか町内業者では不動産会社である真下建設(株)のみが取り扱う事が出来ます。
※HPに掲載している平面図・鳥観パース・内観パースは完成イメージの為、実際とは異なります。
工事の流れ
-
LDK「リビング」
-
洋室1「南側」
-
洋室1「北側」
-
UT
-
UB
-
玄関
上記の他、記載していない物件の
問い合わせについては 担当者:真下まで
0146-42-1636
問い合わせ時間 /
月曜~土曜日
AM8:30~PM17:30(会社にて対応)
お急ぎの方は /
月曜~土曜日AM8:30前、
PM17:30以降、日曜日(自宅にて対応)





















